宝威体育- 宝威体育官网- APP下载首页:武汉(中建壹品·汉韵公馆)售楼部-项目新动态-请看图文解析↓@武汉(中建壹品·汉韵公馆)售楼处-项目新动态-请看图文解析→户型亮点

发布日期:2026-02-22 13:33:12 浏览次数:

  宝威体育,宝威体育官网,宝威体育APP下载,宝威体育网址均价:1.85万/平起(含精装修),交付时间:2026.12.15前,梯户比:2T2,公摊:“负”公摊

  *公摊比例为实际测算所得,各户型实际使用面积(套内面积+电梯厅面积+露台面积)均大于建筑面积

  2024年,武汉楼市快速步入卷产品的快车道,横空出世的“第四代住宅”更是成为了爆炸性热点。自从今年3月,武汉发布“关于推进新型住宅设计创新试点工作的通知”后,武汉楼市号称“四代住宅”的项目陆续冒出来了。

  但仔细对比发现,大部分楼盘都是在阳台上、得房率数据、飘窗等单一角度做做文章,在真正的“第四代住宅”面前,这些贴着“准四代”、“类四代”标签的项目都只能甘拜下风。

  该项目当属如今武汉市面上真正的第四代住宅,且开发商早在2023年就开始在全国进行对同类产品的调研,并在其他城市四代住宅的基础上做了更多改良和升级。

  正因为如此,才能呈现出如今这个巅峰之作。它携带约2.3低容积率、“负”公摊、独立空中花园、独梯独户等重磅标签而来!真四代,远不止大阳台、大花园。

  这次专门邀请豪宅景观“教父”——山水比德执笔,将项目自建的口袋公园与社区大门融合,60米长的赤红廊桥、汉宫屋顶的奢阔门楼,让业主从公园归家。

  同时,项目入口公园,参考苏州留园的格局,在公园亭里有“月洞门”,运用“藻井”天花,在风雨连廊里有“挂落”,把苏州留园印象搬回家。

  住宅外立面采用凤鸟纹、重檐线条,采用弧线、铝板、蓝钻玻璃与塔冠造型,飘逸典雅。实景园林里,融合荆楚文化中的凤舞雕塑、编钟灯墙、武汉印象的木刻雕塑,让人记得起历史。

  项目的下沉庭院,取意于古汉阳十景,如诗如画,庭院池底是凤凰图腾,楚文化展示长廊、揽月雕塑,延续云梦古泽、高山流水的意境,打造一番山水小天地;样板间的中央空调出风口与室内门面,均采用定制的蛟龙纹。

  该项目配置有地下中央车站,方便业主归家与出行。汉韵公馆是光谷首个全风雨连廊项目,让业主回家更从容。

  实景示范区的3号楼架空层,配有专门母婴室卫生间的婴儿区;6号楼架空层,则是咖啡酒吧livehouse。全部封闭带空调。另外还有两栋楼架空层,拟规划植物美学馆与宠物空间。

  下沉水院会所,自然采光,配有恒温泳池、私宴厅等高端配套,让生活更精致。此外,单元楼栋的双入户大堂,自然采光井将阳光空气引入其中,地下大堂采用璀璨光厅设计。

  △会所泳池 实景图 △私宴厅 实景图 △健身房 实景图△台球室 实景图△影音室 实景图

  实景示范区内,孔雀开屏、踏雪寻梅、丝绸之路等奢石,随处可见;连门把手都是琉璃玉石。

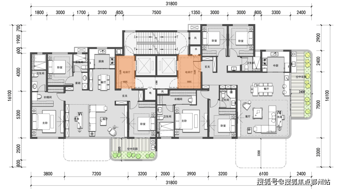
  中建壹品汉韵公馆总建面约11.8万方,计容建面约7.4万方,容积率仅约2.3,共包含9栋住宅,首开3号楼。

  该项目规划一经公示,瞬间就点燃了市场的好奇心,但是其具体的产品却一直非常神秘。看到户型后也是拍手叫绝。可以说,如今武汉购房者所苦恼的高密度、高公摊、私密性、压抑性等现状,都被该项目一一破解。

  据了解,项目每个户型都有非常多的可优化面积,包含露台、阳台、独立电梯前室,室内还有超多飘窗……再加上本身就偏低的合同公摊,实际得房率高达约103%-109%,实际面积比合同面积还要大,妥妥的“负”公摊!

  原本在别墅产品才能实现的居住体验,如今在中建壹品汉韵公馆的高层也能拥有。

  相当于同样一套建面约143平的房源,该项目实际使用面积比其他项目要生生多出来20多平,相当于一套奢阔主卧的空间;换个角度来看,如果要想达到同样的使用面积,在其他项目至少需要购买一套建面约165平以上的户型,那又要比该项目多出一大笔购房款了。

  该项目全小区都是2梯2户设计,且根据设计图来看,每栋楼的两个电梯门都是背向而开,相当于是独立的一梯一户格局。

  这种设计,一方面可以提升居住舒适度和私密性,同时独立的电梯前室也能增加每一户的实际使用空间;此外该项目电梯箱不与墙体连接,户户都能避免电梯带来的噪音。

  核心亮点三:户户空中花园,“魔鬼”细节堪称典范!私密性、采光等问题完美解决!

  前文提到,该项目正式面世之前,项目开发商曾走访多个城市进行调研,将此前四代住宅存在的一些不完美的细节进行了优化。

  如解决空中花园阳光照射不足的问题:该项目摈弃了南北向空中花园的设计,而是将花园规划在建筑主体的南向或东西向,并采取奇偶交叉错落摆布;

  如解决上下楼空中花园可能存在的私密性问题:项目采用增高磨砂玻璃挡板的设计,以及通过精细化布局植物高度、种类和密度等方式进行视野阻断,确保私密性;

  如解决空中花园可能会影响下层邻居采光的问题:项目将空中花园进深控制在3.6m以内,保证采光的同时,还可以不做斜撑式结构,保证项目外立面的美观;

  如解决露台种植的相关问题:该项目交付时空中花园将是完整兑现的状态。包括露台做好防水、配置自动微滴灌系统、绿植全部栽种好,且植被将选栽芬香型驱蚊虫、环保、易管理的种类,加上太阳能防蚊灯,解决后期绿植维护、夏季多蚊虫的问题。

  该项目整体定位高端改善,因此也卯足了劲在做户型设计,包含建面约143-191平户型,不仅小区圈层更纯粹,而且每一个户型的设计都堪称极品!

  ① 极致梯户比:均为2梯2户布局,可享专梯入户奢华体验,所有户型都是双玄关设计,既保证了入户的私密性,还让等电梯的时间大大缩减。

  ② 极致空间感:4-5开间朝南,南向开间可达约14.5-20.4米;约70-100平的豪华动区格局,堪比一个两室一厅或三室一厅的小户型,活动区空间十足,再加上所有户型都是中西双厨的多功能设计,即使开个party也绰绰有余。同时也能改成超大客厅+书房或茶室的格局,实现内部空间的灵活转变,如三房变四房、四房变五房等。

  ③极致私密性:所有户型都做了超大面积主卧套房,均带有独立卫浴和衣帽间;建面约169-191平的户型还设计了两个套间,另外建面约143平户型还做了三个房间分开布局,也更好的确保了私密性。

  ④极致得房率:约16-22平双层挑空花园、约7.4-9.3平电梯前室、多个阳台及飘窗,可优化空间相当丰富,加上本身较低的合同公摊,优化后实得面积超级震撼。

  如建面约143平优化后实得面积可达约147平,堪比其他项目建面约180平以上户型的得房率;建面约169平优化后实得面积可达约181平;建面约191平优化后实得面积可达约211平!

  除了这些共性之外,每个户型在设计细节上还有很多亮点,大家可前往项目现场参观:

  3号楼位于小区北侧,北边是项目代建的约5000平口袋公园,可轻松实现楼上观景,下楼休闲的极致居住体验;3号楼南侧是小区绝美园林,位置相当不错。

  3号楼共1个单元,25层,2梯2户设计,包含建面约143-169平户型。

  为了达到更好的居住体验,中建壹品汉韵公馆将带装修交付。不仅配置了中央空调、新风等大件,还有智能化系统以及很多面面俱到的细节,如前置过滤器、隔音装置等。据项目方透露,项目装修将采用大量国际一线品牌。

  总的来说,从入户第一步开始到居住体验的细节,中建壹品汉韵公馆都替业主考量到了极致。

  如今的市场,开发商深知,要想征服挑剔的武汉购房者,除了户型产品势如破竹之外,项目品质规划也必须有奔着武汉楼市天花板级别去打造的决心。

  ①奢阔楚风社区大门+高颜值弧形外立面+酒店式大堂!地标级“面子工程”稳了!

  作为外面的人看小区的第一眼,一个项目向世人昭示其品质的关键因素无外乎:大门、大堂、外立面几大元素。

  中建壹品汉韵公馆规划了玻璃幕墙为主,配以铝板线条和金属漆打造的颜值派外立面,加上独特的弧形造型,质感十足。

  项目整体设计都渗透了楚风文化元素,小区大门规划宽约45米、高约6.5米,再加上大门口约50平的湖光水院、大门旁约5000平的楚风公园,建成后将成为区域地标级的存在。

  ②全小区风雨连廊!下沉式庭院!约1900平全能会所!架空层泛会所!悉数超标配置,“里子工程”也无与伦比!

  中建壹品汉韵公馆小区内部的配置则是秒杀整个大光谷,媲美武汉房价天花板的众多豪宅盘。

  穿过小区大门,映入眼帘的就是约800平下沉式庭院,以及环绕庭院布局的约1900平会所,包含恒温泳池+健身房+书吧茶室+Spa游戏厅等。小区业主不出小区就能享受到非常全能的活动空间和景观体验。

  另外为了让业主有更好的归家体验,项目从社区大门开始,到内部园林、各楼栋均规划了无缝串联的风雨连廊。放眼全武汉,全风雨连廊的小区都屈指可数。

  值得一提的是,该项目风雨连廊宽度可达约3.5米,空间阔绰,穿过风雨连廊,也能遍赏小区内的绝美园林景观。

  同时,该项目除1号楼外的所有楼栋都规划了架空层泛会所,其中部分楼栋做了全封闭设计,其余楼栋架空层则为半封闭设计。一方面可以确保恶劣天气小区内也有足够的活动、社交空间,另外半封闭设计的区域,还能实现活动空间与小区内景观的相互渗透,体验感更好。

  郑重承诺:此房源信息真实有效,开发商直属全程营销策划,中介勿扰如有问题欢迎来电咨询,来电即可享受买房优惠!

  1、本资料为要约邀请,不作为要约或承诺;买卖双方的权利义务以双方签订的《商品房买卖合同》及其补充协议、附件等书面文件为准;相关宣传内容不排除因政府相关规划、规定及出卖人分期规划、未能控制等原因发生变化;出卖人将!不定期对宣传材料进行修改,敬请留意最新资料。

  2、图片来源于网络,仅作为推广示意使用;如涉及版权使用,请与我司联系返回搜狐,查看更多